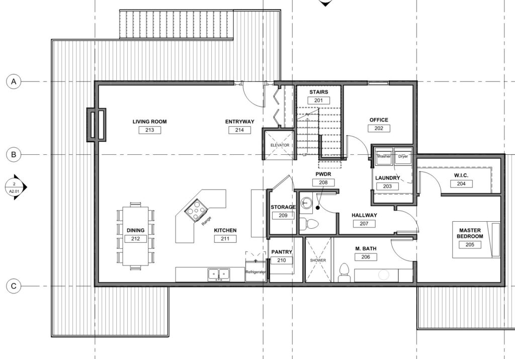
Schematic Design
In the schematic design phase, we translate your goals into preliminary drawings, diagrams, and 3D concepts. This is where we explore layout options, massing, orientation, and overall design direction. We work closely with you to review ideas and refine the vision, ensuring the project starts to take shape in a way that feels right for you and the site.
