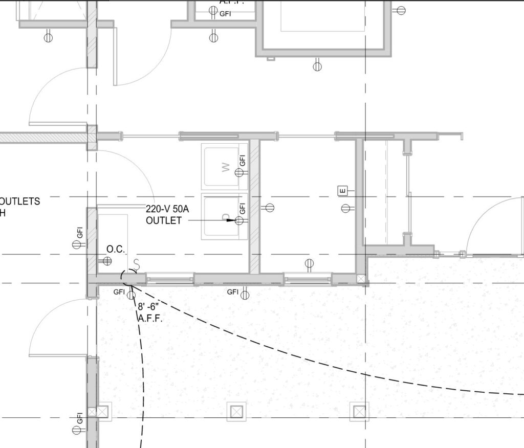
Schematic Electrical Plans
We offer electrical and lighting plans as an additional service to support your project’s functionality and layout. These drawings include the placement of light fixtures, switches, and outlets, helping you plan for comfort and convenience. Whether for new construction or a remodel, our clear and coordinated diagrams help guide your electrician and streamline the installation process.
